您好!欢迎光临佛山市祥聚座椅制造有限公司官网!让学生的智慧与健康同在!

中大型学校家具项目配套

让学生的智慧与健康同在

全国服务热线

4008-166-979

祥聚案例|简单的影院设计,恰恰是最受欢迎

发布时间:2017-10-18阅读:

    观众厅是电影院最重要的功能空间,如何使观众在最短时间找到自己要去的观众厅,平面布置就尤为重要。通常电影院影城平面布置形式有5种形式,分别为“一”型、“L” 型、“T” 型以及“F” 、“H”型布置方式。最优的方案是:观众在通过检票口后,能看到所有的厅号牌,也就是观众走廊为“一”字型。但受到购物中心平面的限制,不是所有影城都能布置出最优方案,这就产生了“L”“T”型的方案,即观众只需一次转弯就可看到要去的观众厅,而“F”、“H” 型方案是布置中的大忌。
(1) “一”字型方案:
    当电影院所在区域为狭长的形状,通常可以布置出此方案。观众走廊占中间一跨,走廊一侧为两跨,另一侧两跨或三跨,例图如下:
 “一”字型方案布置图
(2)“L” 型方案
    当电影院所在区域为比较方正,宽度和长度都超过7跨时,则会产生“L”型方案。例图如下:
 “L”型方案布置图
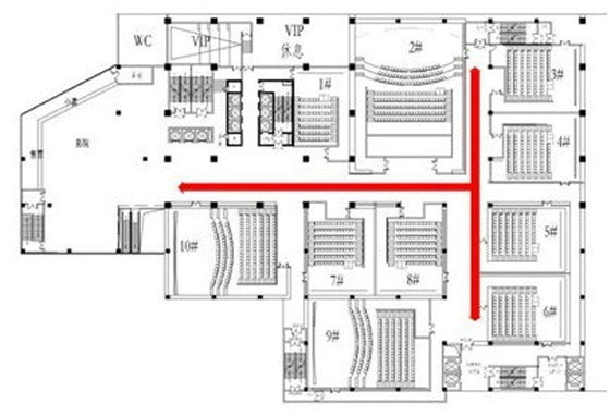
(3)“T”型方案
同样,电影院所在区域较方正,宽度和长度都超过7跨时,也会产生 “T”型方案。例图如下:
“T”型方案布置图
 
    影院布局设计尤为重要,但是观影厅的设计依然跟影院的设计密不可分。观影厅的设计从幕、座、道、门都有相对应的设计窍门。
祥聚座椅针对每次客户提供的场地,从最初的空地布局到通风管道的设计布置,再到座椅布局摆放,对每一平方的设计都提供最合适的建议方案,真正做到从“零”开始,直到场地完善。
从场景设计开始就能为客户量身定做最合适的场地布局,独有的设计理念,合理地利用每一平方的空间成为了祥聚座椅企业与众不同的核心竞争力。
 
    下周三,我们将讨论观影厅的设计布局,有兴趣的你,可以继续关注“祥聚礼堂椅”的公众号,了解观影厅的设计布局喔。

推荐新闻

24小时热线

4008-166-979

招商加盟
QQ咨询
微信咨询

扫码添加微信咨询

留言咨询 留言咨询

留言申请

留言获取更多信息和资料以及电子画册